Vente Terrain 97470, Saint-Benoît france 96 000 €
Descriptif du bien
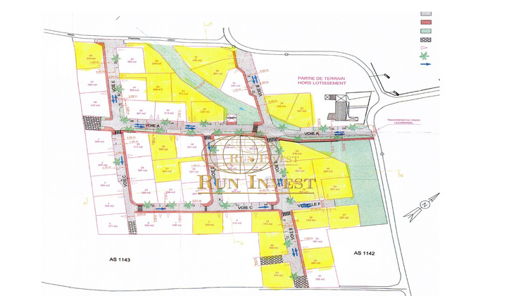
A Saint Benoit - Entrée Nord de la Ville
LOTISSEMENT ACHEVE et ACTABLE IMMEDIATEMENT.
(Photos non contractuelles prises au début du projet)
L'Agence Run Invest vous propose de découvrir les dernières disponibilités de ce lotissement.
Bordé de Champs de canne, le lotissement 'Bleu Conardel' n'est qu'à 2 minutes de la Gare routière et des axes routiers.
On est préservé de l'agitation de la ville.
Les terrains sont livrés viabilisés, avec un muret de moellon en base.
Les terrains disponibles sont d'une superficie comprise entre 302m2 et 424m2
Une visite vous permettra de découvrir tout le potentiel du site.
Disponibilités immédiates sur les lots :
-31 : 305m2 à 96 000EUR
-32 : 320m2 à 100 500EUR
-42 : 425m2 à 132 000EUR
-43 : 375m2 à 117 000EUR
On vous attend pour visiter.
Nos prix s'entendant Frais d'agence inclus ( charge vendeur)
Mandat no 4313 - Agence RUN INVEST IMMOBILIER 0262 46 90 26




