Mon compte
Accueil > Vente > pays-de-la-loire > vendee > Vente Terrain Sables D'olonne
Retour

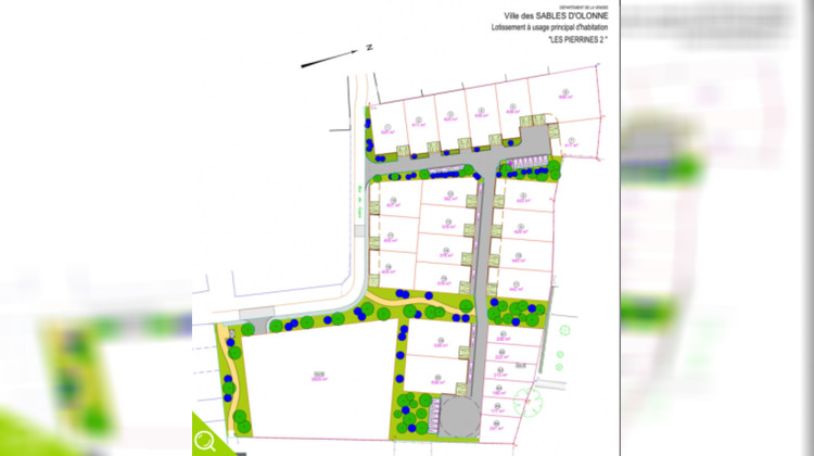
Vente Terrain Sables d'Olonne, 362 m²

Vente Terrain 85340, Sables d'Olonne france 152 100 €

Suivre ce bien

Descriptif du bien

Olonne sur mer, Le lotissement Les Pierrines est idéalement placé, en plein bourg, à proximité la zone commerciale de Super U. Parcelle de 362m², dans un quartier calme, lot viabilisé et équipé en Gaz naturel, parfait pour recevoir votre projet ! Les informations sur les risques auxquels ce bien est exposé sont disponibles sur le site Géorisques : www.georisques.gouv.fr

  • Type de bien : Terrain
  • Surface : 362 m²
  • Localisation : France - pays-de-la-loire - Vendée
  • Ville : Sables d'Olonne
  • Code postal : 85340
  • Annonce créée le 30/12/2025

Biens similaires

Chargement en cours...

Commentaires ou Avis

Poster un commentaire ou un avis sur ce bien. Ce commentaire sera visible sur le sur le site, n’y inscrivez pas vos données personnelles

AGENCE ATLANTA Les sables d olonnes - ATLANTA IMMOBILIER La Chaume

Voir le numéro Tous les biens