Vente Terrain 57420, POURNOY-LA-GRASSE france 152 500 €
1 / 5
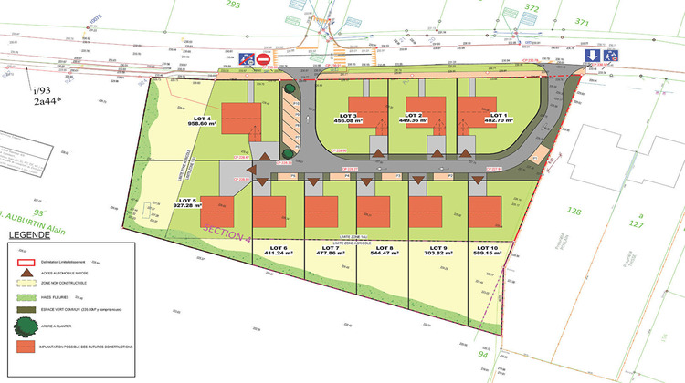
Descriptif du bien
A Pournoy la Grasse, dans un petit lotissement de 10 parcelles, terrain à bâtir viabilisé et libre de constructeur de 5 ares 89 environ et d'une façade de 19,10 m. Pour plus de renseignements n'hésitez pas à nous contacter.




