Vente Terrain 33220, PORT-SAINTE-FOY-ET-PONCHAPT france 50 000 €
Descriptif du bien
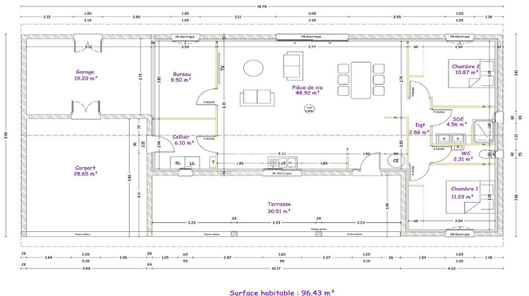
Situé dans un environnement calme et agréable, venez découvrir ce terrain plat de 1184 m², idéal pour concrétiser votre projet de construction. Ce terrain, non viabilisé, bénéficie d'un permis de construire déposé en juillet 2025 et déjà accordé, offrant un véritable gain de temps pour votre projet. Le projet validé prévoit la construction d'une maison individuelle d'environ 100 m² ( coût de la construction à la charge de l'acquéreur) comprenant : 2 chambres 1 bureau 1 salle d'eau 1 WC indépendant Une pièce de vie avec cuisine ouverte sur salon et salle à manger Un cellier Un garage Le permis de construire pourra, sous réserve, être transféré au futur acquéreur. Celui-ci aura également la possibilité de modifier le projet via un permis modificatif ou de déposer un nouveau permis de construire selon ses envies. Les + : Terrain plat, facile à aménager Projet déjà validé administrativement Liberté d'adaptation selon vos besoins Une belle opportunité pour construire la maison qui vous ressemble, tout en bénéficiant d'un cadre serein. Pour plus d'informations ou organiser une visite, contactez-nous dès maintenant.
- Type de bien : Terrain
- Surface : 1184 m²
- Localisation : France - Nouvelle-Aquitaine - Gironde
- Ville : PORT-SAINTE-FOY-ET-PONCHAPT
- Code postal : 33220
- Annonce créée le 28/04/2026



