Vente Terrain 44860, Pont-Saint-Martin france 791 000 €
Descriptif du bien
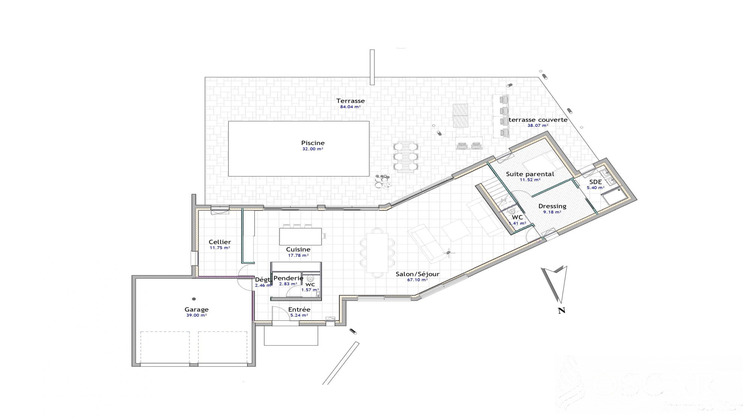
BOURG, PROJET DE CONSTRUCTION SUR 1 690 M² ! Dans environnement privilégié, projet de construction d'une maison haut de gamme (basse consommation) de 196 m² habitables offrant entrée, vaste salon-séjour lumineux de 85 m² avec cuisine ouverte, grande arrière-cuisine, quatre belles chambres dont une suite parentale au rez-de-chaussée, salle de bains, salle d'eau. Garage double de 39 m². Chauffage par le sol (aérothermie). Prestations de qualité. Personnalisation possible. Construction d'un plain-pied possible. Jardin clos, intime et arboré. Terrain de 1690 m². Proximité immédiate du bourg. Rare sur le marché !
Honoraires inclus de 1.67% TTC à la charge de l'acquéreur. Prix hors honoraires 778 000 . Les informations sur les risques auxquels ce bien est exposé sont disponibles sur le site Géorisques : georisques.gouv.fr.
- Type de bien : Terrain
- Surface : 1690 m²
- Localisation : France - pays-de-la-loire - Loire Atlantique
- Ville : Pont-Saint-Martin
- Code postal : 44860
- Annonce créée le 10/04/2026



