Vente Terrain 86000, Poitiers france 119 950 €
Descriptif du bien
Idéalement situé à Poitiers, dans le quartier recherché du Breuil-Mingot, ce terrain à bâtir d'environ 700 m2 offre un cadre de vie rare : un environnement verdoyant et paisible, à seulement quelques minutes du centre-ville de Poitiers et de Montamisé, avec un accès facile aux commodités et aux axes principaux.
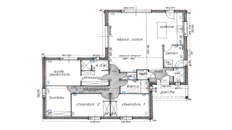
Un permis de construire récemment accordé a été déposé pour une maison familiale de 4 chambres de 134 m2 avec un garage de 33 m2. Ce projet clé en main constitue une base solide pour concrétiser rapidement votre future habitation.
Pour sécuriser et faciliter la construction, les études de sol G1 et G2 ainsi qu'une étude béton ont déjà été réalisées dans le cadre de ce permis. De plus, tous les frais d'architecte nécessaires à l'encadrement de cette construction ont déjà été réglés. Tout est donc prêt à démarrer : il ne reste plus qu'à lancer le terrassement.
Ce permis reste bien entendu modifiable en fonction de vos envies et de votre projet, ce qui vous offre à la fois un gain de temps considérable et une grande flexibilité.
Ce terrain constitue une opportunité rare pour la construction d'une maison de plain-pied, dans un secteur privilégié, où la qualité de vie, le confort et la praticité s'allient parfaitement à la proximité de la ville.
- Type de bien : Terrain
- GES : A -< 6 kg eq CO2/².an
- Surface : 700 m²
- Localisation : France - Nouvelle-Aquitaine - Vienne
- Ville : Poitiers
- Code postal : 86000
- Annonce créée le 17/09/2025





