Vente Terrain 44000, Nantes france 346 000 €
Descriptif du bien
Terrain à bâtir Quartier Canclaux Projet haut de gamme sur-mesureSitué dans le très recherché quartier Canclaux de Nantes, ce terrain à bâtir rare à la vente offre un cadre de vie privilégié, à proximité immédiate des commodités.
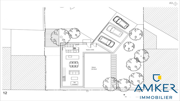
Implanté dans un environnement de qualité, ce bien bénéficie d'un mur d'enceinte en pierres, ainsi qu'une exposition plein sud. Un permis de construire est actuellement en cours d'instruction (susceptible d'ajustements ou de prescriptions par la mairie). Le projet proposé vous laisse la liberté d'aménagement selon vos besoins et votre mode de vie. Sur la base actuelle, il est possible de développer une maison contemporaine d'environ 125 m² habitables, avec des volumes généreux et une conception haut de gamme. Les plans existants illustrent un projet sur plusieurs niveaux avec des espaces de vie lumineux et fonctionnels agrémenter complétés d'un double garage. L'aménagement intérieur pourra évidement être repensé selon vos goûts. La parcelle d'une surface totale d'environ 284 m² sera à viabiliser . Prix 346 000 HAI, une opportunité rare de construire une maison sur-mesure dans l'un des quartiers les plus prisés de Nantes. Pierre-Yves LE MEN au 06 85 52 03 20 / pylemen@amker.fr
Honoraires inclus de 4.85% TTC à la charge de l'acquéreur. Prix hors honoraires 330 000 . Les informations sur les risques auxquels ce bien est exposé sont disponibles sur le site Géorisques : georisques.gouv.fr.
- Type de bien : Terrain
- Surface : 284 m²
- Localisation : France - pays-de-la-loire - Loire Atlantique
- Ville : Nantes
- Code postal : 44000
- Annonce créée le 10/04/2026




