Vente Terrain 64160, Morlaàs france 69 000 €
Descriptif du bien
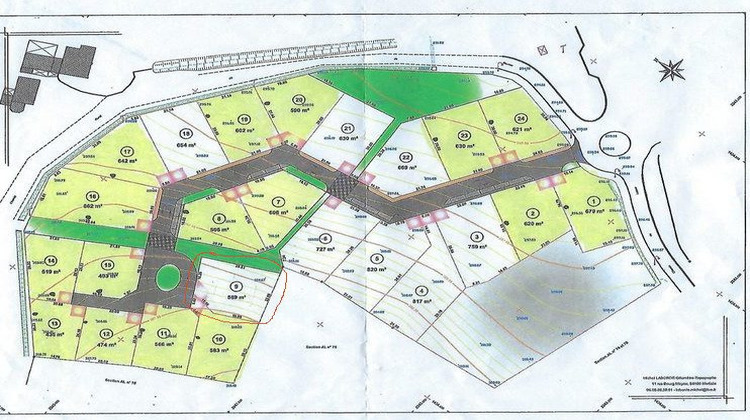
Nous vous proposons à la vente le lot n°9 situé au sein du lotissement « Domaine Jacques Prévert », sur la commune de Morlaàs (64).
? Surface totale : 589 m²
? Emprise au sol : 147 m²
? Terrain borné et viabilisé
? Environnement calme et résidentiel
Idéalement situé, ce terrain vous permettra de réaliser votre projet de construction dans un cadre agréable et proche des commodités.
? Secteur recherché, à quelques minutes de Pau, avec écoles, commerces et services accessibles rapidement.
Honoraires à la charge du vendeur. Les informations sur les risques auxquels ce bien est exposé sont disponibles sur le site Géorisques : georisques.gouv.fr.
Votre conseiller SAS IMMOBILIERE SAINT-GEORGES : Sébastien LAFON
Agent commercial (Entreprise individuelle)
RSAC 498 744 762 Inscrit au R.S.A.C AUCH
RCP 101PGMAN-AW11003
- Type de bien : Terrain
- Surface : 589 m²
- Localisation : France - Nouvelle-Aquitaine - Pyrénées-Atlantique
- Ville : Morlaàs
- Code postal : 64160
- Annonce mise à jour le 07/11/2025



