Vente Terrain 38510, MORESTEL france 79 000 €
1 / 5
Descriptif du bien
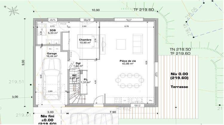
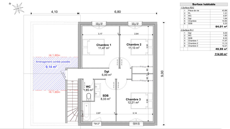
Dernière opportunité ! Emotion immobilier vous propose à la vente ce terrain d'une surface de 514m2. Situé dans un lotissement récemment aménagé, proche de l'ensemble des commodités qu'offre la ville de Morestel, ce terrain viabilisé avec permis de construire accepté et purgé vous permettra d'édifier votre futur lieu de vie. Le PC concerne une maison d'env 114m2 en R+1 avec 4 ch dont 1 suite, 2 salle de bains, 2 WC et 1 garage. Nous pouvons également vous accompagnez dans la réalisation de votre projet de construction. Visite et informations auprès de Maxime CROLLARD, gérant, ou directement dans votre agence Emotion Meximieux.
- Type de bien : Terrain
- Surface : 514 m²
- Localisation : France - Auvergne-Rhône-Alpes - Isère
- Ville : MORESTEL
- Code postal : 38510
- Annonce créée le 25/03/2025




