Vente Terrain 37250, Montbazon france 108 000 €
Descriptif du bien
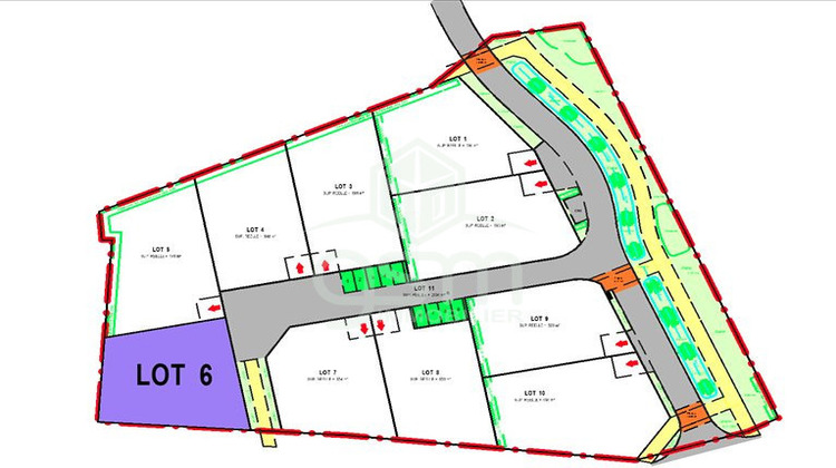
? Terrain à bâtir 603m² Montbazon
À Montbazon, venez découvrir ce magnifique terrain à bâtir de 603 m², idéal pour concrétiser votre projet de construction dans un cadre agréable et recherché.
Terrain entièrement viabilisé : Eau, électricité, assainissement et raccordement à la fibre optique sont déjà en place pour un confort immédiat. Environnement privilégié : Situé au fond d'une impasse, ce terrain bénéficie d'un calme absolu, parfait pour une vie familiale sereine.
Emplacement idéal: À proximité immédiate du collège, de l'école maternelle et primaire, accessibles en toute sécurité grâce à une piste cyclable. Un vrai atout pour les familles.
Libre choix du constructeur : Laissez libre cours à votre imagination et construisez la maison qui vous ressemble.
Accessibilité optimale : Accès rapide et facile à l'autoroute A10 (axe ParisBordeaux), alliant tranquillité et praticité au quotidien.
Parcelle spacieuse et bien proportionnée, parfaite pour accueillir une maison familiale avec jardin.
Une opportunité rare sur le secteur, à découvrir sans tarder !
Les informations sur les risques auxquels ce bien est exposé sont disponibles sur le site Géorisques : georisques.gouv.fr.
- Type de bien : Terrain
- Surface : 603 m²
- Localisation : France - centre-val-de-loire - Indre et Loire
- Ville : Montbazon
- Code postal : 37250
- Annonce créée le 30/01/2026

