Vente Terrain 82000, Montauban france 65 000 €
1 / 4
Descriptif du bien
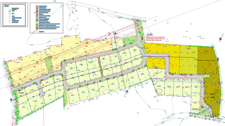
A VENDRE TERRAINS CONSTRUCTIBLES VIABILISES SITUES A MONTAUBAN QUARTIER BAS PAYS (82000). Tarn et Garonne Habitat vous propose 38 terrains à la vente compris entre 416m² et 856m² à 5 minutes du centre-ville de Montauban. Tous les terrains sont rattachés au tout à l'égout et viabilisés en eau, gaz et électricité. Bénéficiez d'un cadre privilégié proche de toutes les commodités.
Pour tout renseignement complémentaire, contactez notre commercial Guillaume GIORGI par mail ou par téléphone.
Les informations sur les risques auxquels ce bien est exposé sont disponibles sur le site Géorisques : georisques.gouv.fr.
- Type de bien : Terrain
- Surface : 650 m²
- Localisation : France - Occitanie - Tarn et Garonne
- Ville : Montauban
- Code postal : 82000
- Annonce créée le 06/02/2026



