Vente Terrain 06500, Menton france 420 000 €
Descriptif du bien
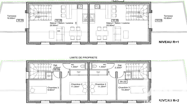
Iad France - Aurélie Querment vous propose : Terrain constructible 235 m² - Projet maison mitoyenne (PC accordé et purgé)
À vendre terrain constructible de 235 m², idéal pour la réalisation de deux maisons mitoyennes d'environ 85 et 91 m² chacune.
Le projet bénéficie d'un permis de construire déjà accordé et purgé de tout recours, permettant un démarrage rapide des travaux.
Caractéristiques :
Surface du terrain : 235 m²
Projet validé pour 2 maisons mitoyennes en copropriété
Garage et places de stationnement prévus
Réseaux validés
Accord pour les raccordements VRD
Permis de construire accordé et purgé des recours
Terrain idéal pour investisseur, projet de construction rapide, avec toutes les autorisations administratives déjà obtenues.
Pour plus d'informations ou organiser une visite, merci de nous contacter.
Honoraires d'agence à la charge du vendeur.
Bien non soumis au DPE. Les informations sur les risques auxquels ce bien est exposé, y compris l'obligation légale de débroussaillement, sont disponibles sur le site Géorisques : http://www.georisques.gouv.fr.
La présente annonce immobilière a été rédigée sous la responsabilité éditoriale de Mme Aurélie Querment mandataire indépendant en immobilier (sans détention de fonds), agent commercial de la SAS I@D France immatriculé au RSAC de Nice sous le numéro 848983557, titulaire de la carte de démarchage immobilier pour le compte de la société I@D France SAS.Informations LOI ALUR : Honoraires charge vendeur. (gedeon_6727_32851497)
- Type de bien : Terrain
- Surface : 235 m²
- Localisation : France - provence-alpes-cote-d-azur - Alpes Maritimes
- Ville : Menton
- Code postal : 06500
- Annonce mise à jour le 21/05/2026


