Vente Terrain 66320, Marquixanes france 63 900 €
Descriptif du bien
Situé à MARQUIXANES, petite commune du Conflent à seulement 5 minutes de PRADES, sous-préfecture des Pyrénées-Orientales, 35 minutes de PERPIGNAN et à mi-chemin entre mer et montagne, venez découvrir ce terrain constructible au coeur d'un petit lotissement agréable à proximité de l'école et terrain de jeux.
Belle exposition sud-ouest!
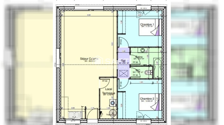
Projet déposé d'une villa plain-pied T3 composée d'une belle pièce de vie traversante, 2 chambres, salle de bains, wc indépendant, local technique. FRAIS DE NOTAIRE REDUITS!
Projet terrain + maison à partir de 188 700¤
Les informations sur les risques auxquels ce bien est exposé sont disponibles sur le site Géorisques : www.georisques.gouv.fr
Prix de vente : 63 900 ¤
Honoraires charge vendeur
Contactez votre conseiller SAFTI : Elodie GERENTON, Tél. : 06 59 38 80 58, E-mail : elodie.gerenton@safti.fr - EI - Agent commercial immatriculé au RSAC de Perpignan sous le numéro 531367126.
Informations LOI ALUR :
Honoraires charge vendeur. (gedeon_26118_32552260)
- Type de bien : Terrain
- Surface : 329 m²
- Localisation : France - Occitanie - Pyrénées-Orientales
- Ville : Marquixanes
- Code postal : 66320
- Annonce créée le 05/02/2026



