Vente Terrain 69380, Lissieu france 310 000 €
Descriptif du bien
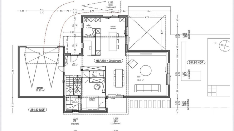
Iad France - Pauline Velozzo vous propose : Très belle opportunité à saisir - LISSIEU limite Limonest - Secteur résidentiel et calmeTerrain plat et viabilisé de 826 m² avec permis de construire - zone URI2B. Localisation idéale, à proximité des commerces, écoles, transports. Architecte du projet : Martin&Martin - Prestations haut de gamme - RT2020 - Très belle orientation EST-SUD-OUESTPermis obtenu pour une maison contemporaine d'habitation en R + 1 d'une surface de plancher de 175 m² environ. PIèce à vivre de près de 75 m², 4 chambres. Grand garage (près de 40 m²). Piscine. ATOUT MAJEUR : Lancement de la construction possible dès le lendemain de l'acquisition ! Photos non contractuellesHonoraires d'agence à la charge du vendeur. Bien non soumis au DPE. Les informations sur les risques auxquels ce bien est exposé, y compris l'obligation légale de débroussaillement, sont disponibles sur le site Géorisques : http://www.georisques.gouv.fr.La présente annonce immobilière a été rédigée sous la responsabilité éditoriale de Mme Pauline Velozzo mandataire indépendant en immobilier (sans détention de fonds), agent commercial de la SAS I@D France immatriculé au RSAC de LYON sous le numéro 938283462, titulaire de la carte de démarchage immobilier pour le compte de la société I@D France SAS.Informations LOI ALUR : Honoraires charge vendeur. (gedeon_6727_32923269)
- Type de bien : Terrain
- Surface : 826 m²
- Localisation : France - Auvergne-Rhône-Alpes - Rhône
- Ville : Lissieu
- Code postal : 69380
- Annonce créée le 26/03/2026





