Vente Terrain 29260, Lesneven france 62 500 €
Descriptif du bien
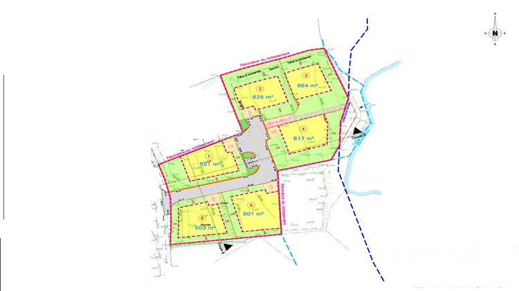
Iad France - Katell Rolland vous propose : iad France - Katell Rolland vous propose : Une parcelle de terrain à bâtir d'environ 625 m² idéalement située à Lesneven, dans un tout nouveau lotissement à taille humaine.
Un cadre de vie recherché, un environnement calme et un fort potentiel de construction : cette opportunité mérite toute votre attention. Les raccordements sont déjà réalisés : eau, électricité et télécom sont en place. Vous gagnez du temps, et votre projet peut démarrer sans attendre.
Autre atout majeur : son emplacement. À seulement 5 minutes en voiture et 20 minutes à pied du centre-ville de Lesneven, cette parcelle offre un parfait équilibre entre calme et proximité. Et à 15 min du site de Ménéham.
Vous profitez d'un environnement paisible, tout en ayant commerces, écoles et services accessibles facilement. Le lotissement se compose de 5 autres parcelles, toutes desservies par une servitude de passage commune. Frais de notaire réduits, emplacement stratégique, terrain prêt à bâtir : tout est réuni pour concrétiser votre projet ou réaliser un bon investissement. À visiter sans tarder.
Honoraires d'agence à la charge du vendeur.
Bien non soumis au DPE. Les informations sur les risques auxquels ce bien est exposé, y compris l'obligation légale de débroussaillement, sont disponibles sur le site Géorisques : http://www.georisques.gouv.fr.
La présente annonce immobilière a été rédigée sous la responsabilité éditoriale de Mme Katell Rolland mandataire indépendant en immobilier (sans détention de fonds), agent commercial de la SAS I@D France immatriculé au RSAC de BREST sous le numéro 818442352, titulaire de la carte de démarchage immobilier pour le compte de la société I@D France SAS.
Informations LOI ALUR :
Honoraires charge vendeur. (gedeon_6727_32247623)


