Vente Terrain 06550, La Roquette-sur-Siagne france 420 000 €
Descriptif du bien
Votre agence Excellence Riviera vous présente à la vente, à la Roquette sur Siagne,
un TERRAIN À BÂTIR AVEC PROJET DE CONSTRUCTION 2 MAISONS MITOYENNES
Au sein d'un environnement résidentiel calme et recherché.
Le terrain bénéficie d'une surface totale de 855 m² (sous réserve de bornage) et fait actuellement l'objet d'un permis de construire en cours de dépôt, portant sur la réalisation de deux maisons mitoyennes contemporaines.
Ce projet respecte les règles du PLU et intègre l'ensemble des prescriptions d'urbanisme, VRD et paysagères.
? CARACTÉRISTIQUES DU TERRAIN
Situation : secteur résidentiel, accès direct via voie existante
Projet intégré dans l'emprise conforme aux règles locales d'urbanisme
Espaces verts en pleine terre > 50 %
?? PROJET DE CONSTRUCTION 2 MAISONS MITOYENNES
Le permis en cours d'instruction prévoit la construction de deux maisons mitoyennes R+1 avec sous-sol, chacune comprenant :
- Maison 1
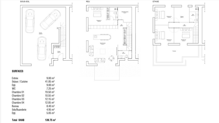
Surface habitable : 139,75 m²
Sous-sol / garage : env. 75 m²
4 chambres + bureau
Grande pièce de vie de 41,85 m²
Terrasse à l'étage
Jardin privatif
(Plans intérieurs fournis ? voir fichier joint)
- Maison 2
Modèle identique ou évolutif selon le dossier PC
Sous-sol, espaces extérieurs privatifs, jardin
Stationnements dédiés
? DOCUMENTS REMIS À L'ACQUÉREUR
? Plan de parcelle 863 m²
? Plan VRD complet
? Plans intérieurs (Maison 1)
? Plans d'implantation et de masse
? Perspectives 3D d'intégration
? Notice descriptive du projet
? Étude EP + calculs du bassin
? Fichiers DWG / PDF selon demande
?? INFORMATIONS RÉGLEMENTAIRES
Vente d'un terrain avec projet défini : le permis en cours de dépôt porte strictement sur deux maisons mitoyennes.
Toute modification ultérieure serait conditionnée à un modificatif de permis après obtention du PC initial.
Le terrain est vendu libre de constructeur.
Le futur acquéreur pourra suivre l'instruction du PC actuellement déposé.
Honoraires à la charge du vendeur. Les informations sur les risques auxquels ce bien est exposé sont disponibles sur le site Géorisques : georisques.gouv.fr.
- Type de bien : Terrain
- Surface : 855 m²
- Localisation : France - provence-alpes-cote-d-azur - Alpes Maritimes
- Ville : La Roquette-sur-Siagne
- Code postal : 06550
- Annonce mise à jour le 20/02/2026





