Vente Terrain 91290, La Norville france 162 000 €
Descriptif du bien
LA NORVILLE. A 10 minutes à pied de la gare de La Norville et 15 minutes à pied du centre-ville d'ARPAJON. Venez découvrir ce magnifique terrain à bâtir de 263 m2, situé en fond d'une impasse verdoyante, à l'abris des regards.
Le Permis de Construire est déjà accordé par la Mairie de la commune. Il vous permettra dès que vous le souhaitez de commencer votre construction pour édifier votre magnifique maison individuelle de type F5, d'environ 95 m2 habitables, avec une façade d'environ 8 mètres et aux normes RE 2020 ! Les travaux de voirie desservant le terrain sont en cours, à charge vendeur.
Elle pourra se composer de la façon suivante (modifiable aux grès de vos envies) :
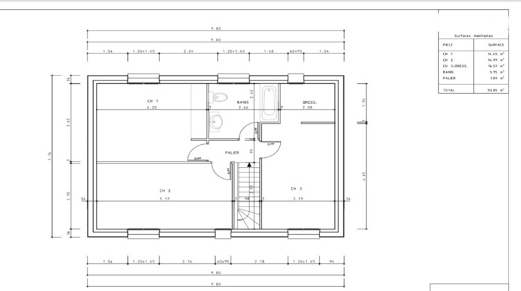
Une entrée avec placards, un WC séparé et une pièce de vie lumineuse d'environ 36 m2 avec cuisine ouverte aménagée, et accès direct au jardin clos et plat, sans vis-à-vis. A l'étage vous trouverez un palier desservant trois belles chambres avec placards, et une salle de bains avec WC.
Stationnements aériens faciles devant votre maison, donnant accès à un garage attenant de 14 m2.
Informations financières de votre projet : Terrain à bâtir affiché au prix de 162 000 EUR comprenant la viabilisation.
Budget total : Maison + Terrain + Viabilisation = Pour un budget d'environ 353 000 EUR hors frais de notaire. Opportunité en or pour bénéficier de la maison dont vous rêvez, aux normes RE 2020.
Constructeur déjà trouvé pour ce terrain, il connait l'environnement sur le bout des doigts et pourra vous permettre de trouver la meilleure construction, au meilleur prix.
Contactez-moi pour davantage d'informations et organiser une visite - EXPERTIMO - Mme Cléa NOBELEN - 07 83 50 04 14 - clea.nobelen@lacledelimmo.paris- www.reseau-expertimo.fr - Honoraires à charge vendeurs
Cette annonce vous est proposée par NOBELEN Cléa - EI - NoRSAC: 880 386 958, Enregistré à Greffe du tribunal de commerce de EVRY
- Annonce rédigée et publiée par un Agent Mandataire -
- Type de bien : Terrain
- GES : A -< 6 kg eq CO2/².an
- Surface : 263 m²
- Localisation : France - ile-de-france - Essonne
- Ville : La Norville
- Code postal : 91290
- Annonce créée le 01/10/2025




