Vente Terrain 06500, Gorbio france 225 000 €
1 / 4
Descriptif du bien
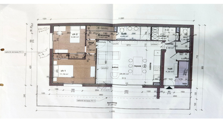
Nouveauté à GORBIO, beau terrain à bâtir de 867 m2 avec permis de construire accordé en 2022 pour la construction d'une villa individuelle d'environ 148 m2 habitables.
Permis accordé pour une maison sur 2 niveaux, garage en sous sol pour deux voitures et piscine
Dossier complet en agence
Visites et informations complémentaires 06 09 17 25 24
Bien non soumis au statut de la copropriété / pas de charges / honoraires charge vendeur.
- Type de bien : Terrain
- GES : A -< 6 kg eq CO2/².an
- Surface : 867 m²
- Localisation : France - provence-alpes-cote-d-azur - Alpes Maritimes
- Ville : Gorbio
- Code postal : 06500
- Annonce créée le 11/06/2025



