Vente Terrain 77610, Fontenay-Trésigny france 160 000 €
Descriptif du bien
Iad France - Anthony BOUSSARD vous propose : À FONTENAY-TRESIGNY.
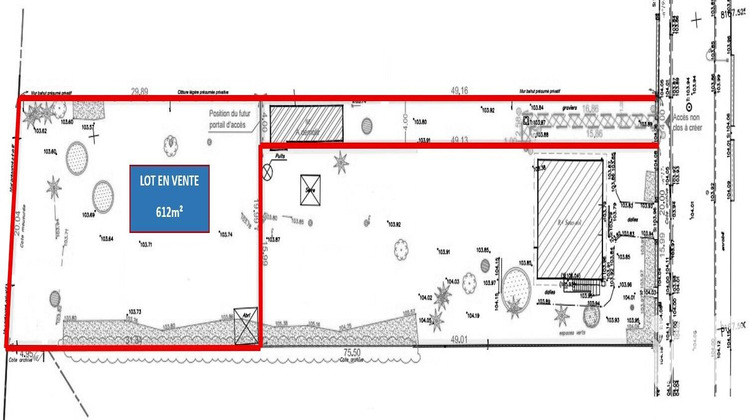
Faites construire votre maison sur ce GRAND TERRAIN de 809 m² EN LOT ARRIERE aux caractéristiques suivantes :
- Libre choix du constructeur
- 612 m² de parcelle + 197 m² d'allée (accès en lot arrière privatif)
- Façade de 20ml
- Non viabilisé mais tous les réseaux sur rue (eau - électricité - tout à l'égout - fibre)
- Bornage effectué
- Zone Ub du PLU
- Hors secteur des Bâtiments de France
- Plat
- Exposition Est / Ouest
- A prévoir un peu de défrichage, nettoyage et abattage d'arbres
Ville dynamique avec écoles de la primaire au collège, centre commercial Leclerc, piscine, de nombreuses associations sportives et culturelles, maison de santé et cabinet médical.
Mais aussi, gare de Marles en Brie (ligne P) à 5mn et gare de Tournan en Brie (RER E) à 10mn.
Contactez moi pour programmer une visite.
Honoraires d'agence à la charge du vendeur.
Bien non soumis au DPE. Les informations sur les risques auxquels ce bien est exposé, y compris l'obligation légale de débroussaillement, sont disponibles sur le site Géorisques : http://www.georisques.gouv.fr.
La présente annonce immobilière a été rédigée sous la responsabilité éditoriale de M Anthony BOUSSARD mandataire indépendant en immobilier (sans détention de fonds), agent commercial de la SAS I@D France immatriculé au RSAC de MEAUX sous le numéro 848267340, titulaire de la carte de démarchage immobilier pour le compte de la société I@D France SAS.
Informations LOI ALUR :
Honoraires charge vendeur. (gedeon_6727_32191034)
- Type de bien : Terrain
- Surface : 809 m²
- Localisation : France - ile-de-france - Seine et Marne
- Ville : Fontenay-Trésigny
- Code postal : 77610
- Annonce créée le 20/11/2025


