Vente Terrain 73300, Fontcouverte-la-Toussuire france 70 000 €
1 / 6
Descriptif du bien
IMAGINEZ ICI votre futur projet de construction... Situé à 5 minutes du centre de ST JEAN DE MAURIENNE, lotissement au calme et ensoleillé proche station de la TOUSSUIRE .
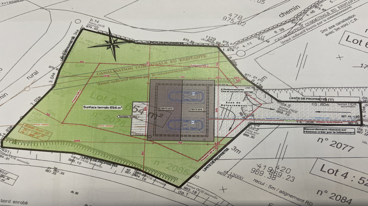
PARCELLE DE TERRAIN CONSTRUCTIBLE de 639 m2 avec permis de construire validé. Projet et plans consultables à l'agence.Possibilité de modifier selon ses besoins et de déposer un autre permis de construire.
Pour plus de renseignements contacter notre agence de SAINT JEAN DE MAURIENNE au TEL 04.79.64.14.16
Ou sur le portable 06.87.24.81.17
- Type de bien : Terrain
- GES : A -< 6 kg eq CO2/².an
- Surface : 639 m²
- Localisation : France - Auvergne-Rhône-Alpes - Savoie
- Ville : Fontcouverte-la-Toussuire
- Code postal : 73300
- Annonce créée le 03/12/2025





