Vente Terrain 17100, Fontcouverte france 46 225 €
1 / 5
Descriptif du bien
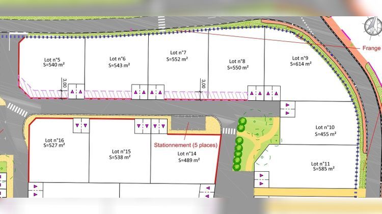
Aux portes de SAINTES, dans un environnement vert et calme et à 30 minutes des plages, BFG IMMOBILIER présente en exclusivité dans petit lotissement situé à proximité du centre bourg, terrain à bâtir viabilisé avec tout à l'égout, d'une superficie de 455 m2.
Lot No 10.
Libre de constructeur.
Zone UB.
Non soumis au DPE.
Les informations sur les risques auxquels ce bien est exposé sont disponibles sur le site Géorisques : www. georisques. gouv. fr
- Type de bien : Terrain
- Surface : 455 m²
- Localisation : France - Nouvelle-Aquitaine - Charente Maritime
- Ville : Fontcouverte
- Code postal : 17100
- Disponible le 23/11/2023
- Annonce créée le 08/12/2023




