Vente Terrain 17100, Fontcouverte france 55 250 €
1 / 4
Descriptif du bien
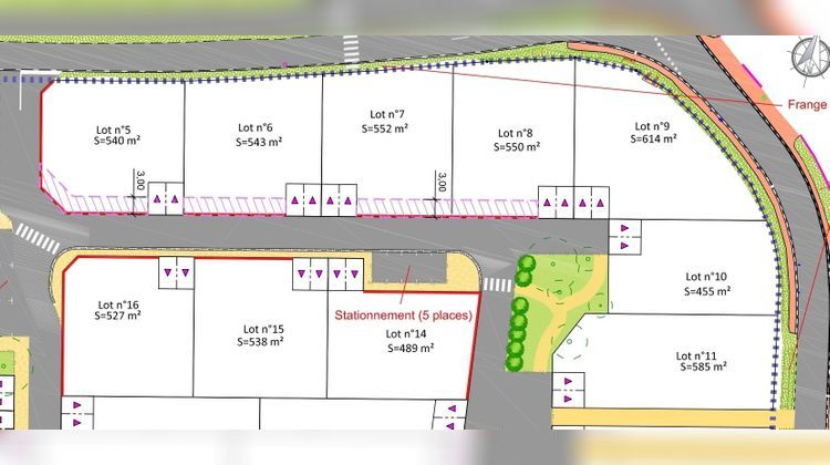
Aux portes de SAINTES, dans un environnement vert et calme et à 30 minutes des plages, BFG IMMOBILIER présente en exclusivité dans petit lotissement situé à proximité du centre bourg, terrain à bâtir viabilisé avec tout à l'égout, d'une superficie de 550 m2.
Lot No 8.
Libre de constructeur.
Zone UB.
Non soumis au DPE.
Les informations sur les risques auxquels ce bien est exposé sont disponibles sur le site Géorisques : www. georisques. gouv. fr
- Type de bien : Terrain
- Surface : 550 m²
- Localisation : France - Nouvelle-Aquitaine - Charente Maritime
- Ville : Fontcouverte
- Code postal : 17100
- Disponible le 23/11/2023
- Annonce créée le 08/12/2023



