Vente Terrain 76400, Fécamp france 130 000 €
Descriptif du bien
Terrain exceptionnel avec vue mer Fécamp, secteur Côte de la Vierge
Rare à la vente.
Situé dans un environnement privilégié, ce terrain bénéficie d'une vue mer, dans l'un des secteurs les plus recherchés de Fécamp, à proximité immédiate de la Côte de la Vierge.
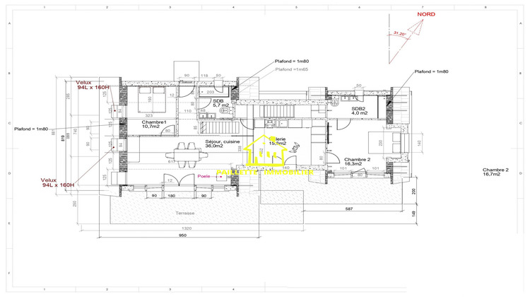
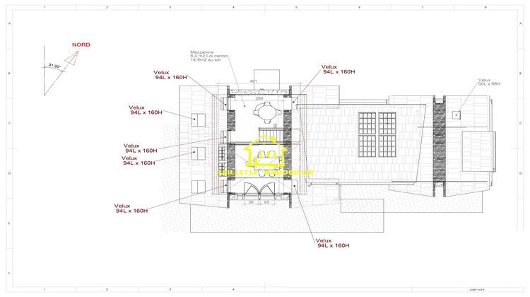
Le terrain dispose d'un permis de construire, vous permettant de concrétiser rapidement votre projet pour une maison.
Viabilisation faite pour l'électricité et le tout à l'égout.
Cadre calme, vue dégagée, emplacement de premier choix
un bien idéal pour une résidence principale ou secondaire avec un vrai potentiel de valorisation.
Honoraires à la charge du vendeur. Les informations sur les risques auxquels ce bien est exposé sont disponibles sur le site Géorisques : georisques.gouv.fr.
Votre conseiller Agence de Gonneville-la-Mallet- PAILLETTE IMMOBILIER : Jean Luc SOUDAY
Agent commercial (Entreprise individuelle)
RSAC 982162760
- Type de bien : Terrain
- Surface : 1321 m²
- Localisation : France - Normandie - Seine Maritime
- Ville : Fécamp
- Code postal : 76400
- Annonce créée le 17/04/2026



