Vente Terrain 59310, Faumont france 99 000 €
Descriptif du bien
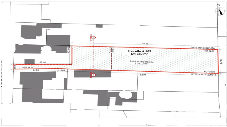
Iad France - Thomas Bricout vous propose : Terrain à vendre à FaumontTerrain constructible en second rang d'une superficie de 1 380 m², situé dans un secteur très calme de la commune de Faumont. Il bénéficie d'une vue dégagée et d'une exposition sud-est, idéale pour profiter d'un environnement agréable. Le terrain est non viabilisé. Un permis de construire a déjà été accordé, permettant de reprendre le projet existant ou d'imaginer une nouvelle construction selon vos besoins, sous réserve des démarches d'urbanisme. Prix : 99 000 ¤.Pour plus d'informations ou organiser une visite, n'hésitez pas à me contacter. Honoraires d'agence à la charge du vendeur. Bien non soumis au DPE. Les informations sur les risques auxquels ce bien est exposé, y compris l'obligation légale de débroussaillement, sont disponibles sur le site Géorisques : http://www.georisques.gouv.fr.La présente annonce immobilière a été rédigée sous la responsabilité éditoriale de M Thomas Bricout mandataire indépendant en immobilier (sans détention de fonds), agent commercial de la SAS I@D France immatriculé au RSAC de Douai sous le numéro 888730413, titulaire de la carte de démarchage immobilier pour le compte de la société I@D France SAS.Informations LOI ALUR : Honoraires charge vendeur. (gedeon_6727_32851839)
- Type de bien : Terrain
- Surface : 1380 m²
- Localisation : France - Hauts-de-France - Nord
- Ville : Faumont
- Code postal : 59310
- Annonce créée le 19/03/2026



