Vente Terrain 57290, Fameck france 86 000 €
Descriptif du bien
++++++ Terrain de 546 m2 ++++++
Terrain à bâtir avec Permis de Construire.
Situé au calme dans un quartier résidentiel et proche des accès autoroutiers (A31), ce terrain constructible de 5,46 ares dispose d'une façade de 8 mètres.
Vue dégagée sur la forêt à l'arrière.
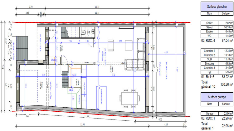
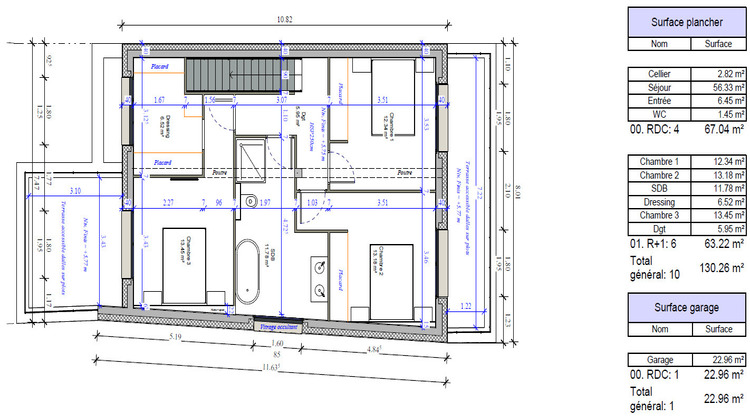
Permis de construire avec une maison de 130m2 habitable disposant 3 chambres et d'un garage de 23m2.
Pour plus d'informations, contactez-nous au 06 30 00 24 57
honoraires à la charge du vendeur inclus dans le prix
Cette annonce a été rédigée par M. Deniz KARA EI (ID 798 172 458), mandataire indépendant en immobilier, agent commercial de la SASU STRUKTUR IMMOBILIER, immatriculé au RSAC de Metz sous le numéro 835 175 365.
Retrouvez tous nos biens sur notre site internet : www.struktur-immobilier.com.




