Vente Terrain 14700, Falaise france 33 660 €
Descriptif du bien
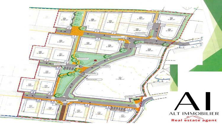
NORMANDIE, 15 min de FALAISE, à PUTANGES-LE-LAC, proche commerces et écoles. 21 terrains constructibles en lotissement de 434 m² à 702 m².
Viabilisés. Libre de constructeur.
REFERENCE : VA14P/1 - PRIX : de 21 483 à 34 749 HAI soit 49,50 /m² HAI.
Le prix comprend les honoraires d'agence à la charge de l'acquéreur soit 10 % TTC du prix du bien hors honoraires.
Pour plus de renseignement sur chaque parcelle contactez-nous ! Agence ALTIMMOBILIER PUTANGES LE LAC : Tél : 02.33.12.52.12.
NORMANDY, 15 min from FALAISE, PUTANGES-LE-LAC, close to shops and schools. 21 buildable serviced land parcel from 434 sm to 702 sm.
Free from constructor.
REFERENCE: VA14P/1 - PRICE: from 21,483 to 34,749 HAI or 49.50/m² HAI.
The price includes agency fees charged to the buyer, 10 % TTC of the price without the fees.
Agency ALTIMMOBILIER in PONT D'OUILLY Tel : + 33 2 31 50 3000 - 2 Agencies at your service, specialists in the SUISSE NORMANDE.
Les informations sur les risques auxquels ce bien est exposé sont disponibles sur le site Géorisques : georisques.gouv.fr.



