Vente Terrain 84110, Vaison-la-Romaine france 139 300 €
1 / 3
Descriptif du bien
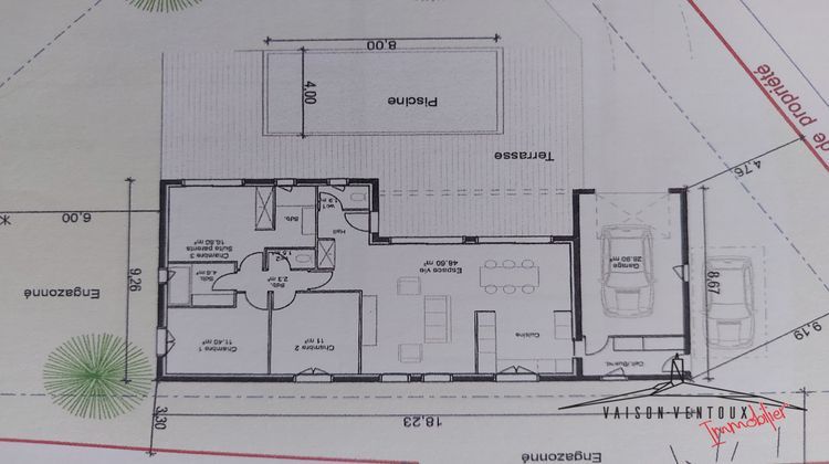
A 5 mn à l'Est de Vaison la Romaine, venez découvrir ce joli terrain de 1350 m2 arboré, exposé plein sud avec un permis de construire pour une habitation de 100m2 habitables, un garage et une piscine. L'habitation est prévue avec un séjour, une cuisine, 3 chambres, une salle d'eau et un wc. Possibilité d'apporter des modifications au permis de construire. Ce terrain est situé au milieu des vignes et non loin d'une rivière. Rare à la vente.
- Type de bien : Terrain
- Surface : 1335 m²
- Localisation : France - provence-alpes-cote-d-azur - Vaucluse
- Ville : Vaison-la-Romaine
- Code postal : 84110
- Annonce mise à jour le 26/11/2025


