Mon compte
Accueil > Vente > pays-de-la-loire > loire-atlantique > Vente Terrain Dreffeac
Retour

Vente Terrain DREFFEAC, 2795 m²

Vente Terrain 44530, DREFFEAC france 78 000 €

Suivre ce bien

Descriptif du bien

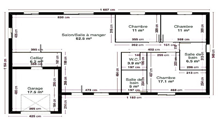
CAPIFRANCE OPPORTUNITE. POUR LES AMOUREUX DES CADRES NATURELS. Ce qui rend cette offre particulièrement attractive, c'est le permis déjà accepté, et purgé, pour une maison à édifier, moderne de 123 m² de surface plancher, conforme aux dernières normes 2020. Christine GICQUEL vous propose ce terrain de 2795 m², offrant une magnifique vue dégagée sur la nature, la campagne arborée, et situé en hameau, dans un environnement calme ; et esprit village. Idéalement situé entre Pontchâteau et Drefféac, et proche également de Missillac, Ce terrain plat, est partiellement clôturé, dispose d'environ 23 mètres de façade (desservi par les réseaux sur la voirie). Il se compose de parcelles, dont 515 m² sont constructibles, et les 2 280 m² classés en zone agricole, vous garantissent une tranquillité et un environnement verdoyant et naturel. Ce que j'aime concernant le permis accepté : le projet est prêt, il n'attend que vous ! La maison, est moderne, nouvelle génération, adaptée aux personnes à mobilité réduite (PMR), comprend un salon-séjour avec cuisine ouverte, un cellier, un WC indépendant, une salle de bains, une salle d'eau, et trois chambres spacieuses, Ainsi qu'un garage de 17,5 m². Vous aurez la liberté de choisir votre constructeur avec la possibilité de modifier le permis si nécessaire. A PREVOIR : le terrain nécessite une viabilisation et un assainissement autonome. Ne manquez pas cette opportunité rare dans le secteur de l'immobilier, un grand terrain PROCHE DE PONTCHATEAU ! Les honoraires sont à la charge du vendeur. Les informations sur les risques auxquels ce bien est exposé sont disponibles sur le site Géorisques : www. georisques. gouv. fr. Réseau Immobilier CAPIFRANCE - Votre agent commercial (RSAC N°825 001 878 - Greffe de SAINT NAZAIRE) Christine GICQUEL Entrepreneur Individuel à Responsabilité Limitée 06 48 64 02 58 - Réf.901818

  • Type de bien : Terrain
  • Surface : 2795 m²
  • Localisation : France - pays-de-la-loire - Loire Atlantique
  • Ville : DREFFEAC
  • Code postal : 44530
  • Annonce créée le 19/04/2025

Biens similaires

Chargement en cours...

Commentaires ou Avis

Poster un commentaire ou un avis sur ce bien. Ce commentaire sera visible sur le sur le site, n’y inscrivez pas vos données personnelles