Vente Terrain 84160, Cucuron france 199 000 €
1 / 6
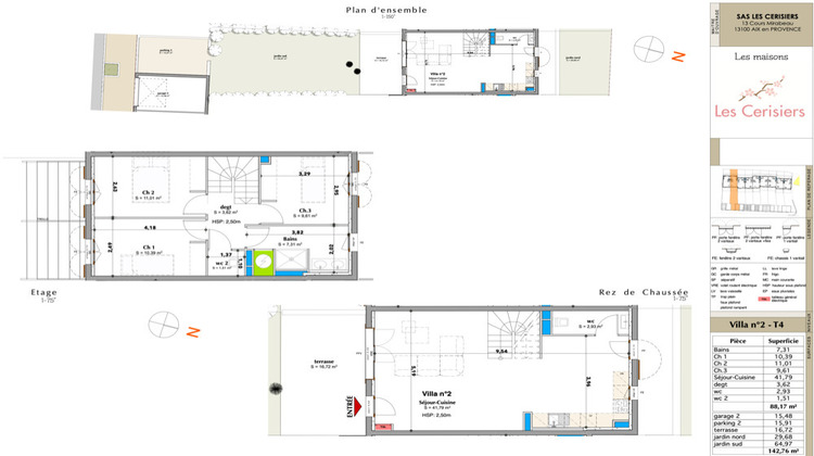
Descriptif du bien
L'ensemble immobilier fait partie d'un projet général d'aménagement initié par la Commune de Cucuron dans le Luberon.
Le projet se compose, d'une part, de 9 maisons mitoyenne avec jardins, garage indépendant et place de parking.
D'autre part, d'un immeuble en R + 2 de 22 lots, avec un niveau de stationnement en sous-sol.
Et enfin de 5 lots de terrain à bâtir libres de constructeur.
L'opération bénéficie d'un Permis d'Aménagé arrêté le 9 octobre 2023 et d'un Permis de construire arrêté le 20 aout 2024 (purgés de tout recours) et fera l'objet d'une performance thermique RE2020.
Une grande partie des lots sont encore disponibles. (gedeon_32811_30979305)
- Type de bien : Terrain
- Surface : 384 m²
- Localisation : France - provence-alpes-cote-d-azur - Vaucluse
- Ville : Cucuron
- Code postal : 84160
- Annonce créée le 03/04/2025





