Vente Terrain 01350, Cressin-Rochefort france 92 900 €
Descriptif du bien
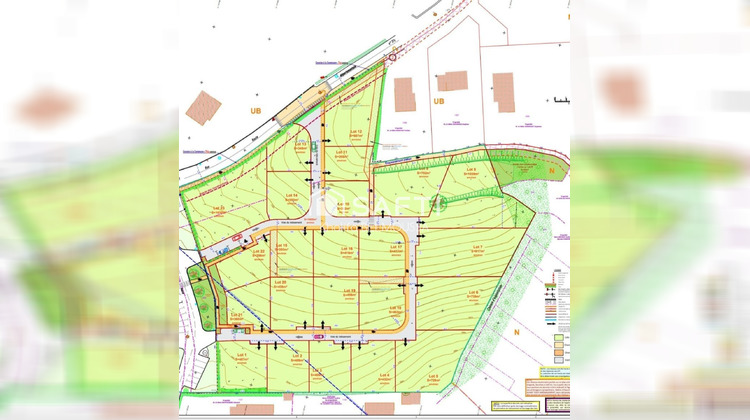
Situé dans la charmante commune de Cressin-Rochefort (01350), venez découvrir ce terrain viabilisé de 917 m², idéalement implanté dans un environnement calme et résidentiel. Au coeur d'un lotissement familial et paisible, ce terrain bénéficie d'un emplacement privilégié : l'école se situe juste en face, à seulement quelques mètres, un véritable atout pour la vie de famille et le quotidien. Très belle exposition, offrant un superbe ensoleillement tout au long de la journée, parfait pour imaginer une maison lumineuse et agréable à vivre. Les caractéristiques du terrain : Superficie : 917 m²Terrain constructible et viabiliséTous les VRD ont été tirésRaccordement au tout-à-l'égoutLibre constructeurÉcole à quelques mètresEnvironnement calme et recherchéCe terrain vierge offre un beau potentiel pour réaliser une maison sur mesure, laissant libre cours à votre imagination pour concevoir un espace de vie qui vous ressemble parfaitement. Dossier complet sur demande. Les informations sur les risques auxquels ce bien est exposé sont disponibles sur le site Géorisques : www.georisques.gouv.frPrix de vente : 92 900 ¤Honoraires charge vendeurContactez votre conseiller SAFTI : Khalifa BELMOUSSA, Tél. : 06 88 03 86 48, E-mail : khalifa.belmoussa@safti.fr - EI - Agent commercial immatriculé au RSAC de Bourg-en-Bresse sous le numéro 953951522.Informations LOI ALUR : Honoraires charge vendeur. (gedeon_26118_32838714)
- Type de bien : Terrain
- Surface : 917 m²
- Localisation : France - Auvergne-Rhône-Alpes - Ain
- Ville : Cressin-Rochefort
- Code postal : 01350
- Annonce créée le 19/03/2026




