Vente Terrain 77580, Coutevroult france 149 900 €
Descriptif du bien
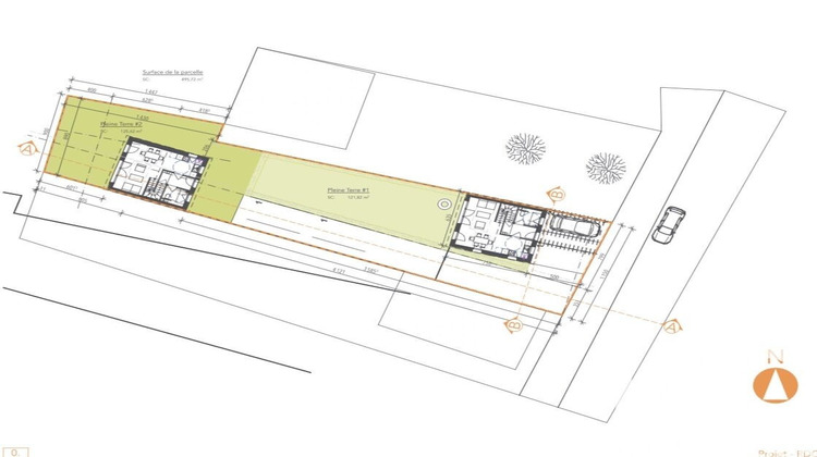
Iad France - Jawad Tourabi vous propose : TERRAIN À BÂTIR - 495 m² - POSSIBILITÉ 2 MAISONS - PROCHE VAL D'EUROPE
Coutevroult (77580) - environnement résidentiel recherché
* Caractéristiques du terrain *
Superficie : 495 m²
Façade : environ 11 mètres
Terrain borné
Terrain plat et libre de constructeur
Raccordement à l'assainissement existant
* Potentiel de construction *
Idéal pour maison individuelle
Possibilité de division pour 2 maisons
Parfait pour particulier, investisseur ou petit constructeur
* Localisation & accès *
Accès rapide à l'A4 (Paris / Marne-la-Vallée)
Val d'Europe à environ 10 minutes
Proximité écoles, commerces et transports
Cadre de vie calme et familial
* Informations importantes *
Projet validé mairie
Terrain vendu sans permis de construire
Projet à valider selon vos besoins et règles d'urbanisme
* Contact *
Disponible pour étude de projet et visite sur demande.
Honoraires d'agence à la charge du vendeur.
Bien non soumis au DPE. Les informations sur les risques auxquels ce bien est exposé, y compris l'obligation légale de débroussaillement, sont disponibles sur le site Géorisques : http://www.georisques.gouv.fr.
La présente annonce immobilière a été rédigée sous la responsabilité éditoriale de M Jawad Tourabi mandataire indépendant en immobilier (sans détention de fonds), agent commercial de la SAS I@D France immatriculé au RSAC de Meaux sous le numéro 799562657, titulaire de la carte de démarchage immobilier pour le compte de la société I@D France SAS.Informations LOI ALUR : Honoraires charge vendeur. (gedeon_6727_32984157)
- Type de bien : Terrain
- Surface : 495 m²
- Localisation : France - ile-de-france - Seine et Marne
- Ville : Coutevroult
- Code postal : 77580
- Annonce créée le 16/04/2026


