Vente Terrain 77580, Coutevroult france 149 900 €
Descriptif du bien
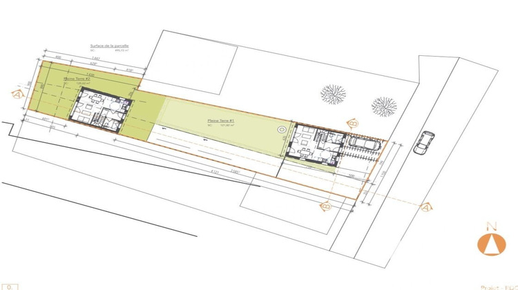
Iad France - Jawad Tourabi vous propose : TERRAIN À BÂTIR - 495 m² - POSSIBILITÉ 2 MAISONS - PROCHE VAL D'EUROPECoutevroult (77580) - environnement résidentiel recherché * Caractéristiques du terrain * Superficie : 495 m²Façade : environ 11 mètresTerrain bornéTerrain plat et libre de constructeurRaccordement à l'assainissement existant * Potentiel de construction * Idéal pour maison individuellePossibilité de division pour 2 maisonsParfait pour particulier, investisseur ou petit constructeur * Localisation & accès * Accès rapide à l'A4 (Paris / Marne-la-Vallée) Val d'Europe à environ 10 minutesProximité écoles, commerces et transportsCadre de vie calme et familial * Informations importantes * Projet validé mairieTerrain vendu sans permis de construire Projet à valider selon vos besoins et règles d'urbanisme * Contact * Disponible pour étude de projet et visite sur demande. Honoraires d'agence à la charge du vendeur. Bien non soumis au DPE. Les informations sur les risques auxquels ce bien est exposé, y compris l'obligation légale de débroussaillement, sont disponibles sur le site Géorisques : http://www.georisques.gouv.fr.La présente annonce immobilière a été rédigée sous la responsabilité éditoriale de M Jawad Tourabi mandataire indépendant en immobilier (sans détention de fonds), agent commercial de la SAS I@D France immatriculé au RSAC de Meaux sous le numéro 799562657, titulaire de la carte de démarchage immobilier pour le compte de la société I@D France SAS.Informations LOI ALUR : Honoraires charge vendeur. (gedeon_6727_32984157)
- Type de bien : Terrain
- Surface : 495 m²
- Localisation : France - ile-de-france - Seine et Marne
- Ville : Coutevroult
- Code postal : 77580
- Annonce créée le 02/04/2026


