Vente Terrain 50290, COUDEVILLE-SUR-MER france 76 000 €
1 / 2
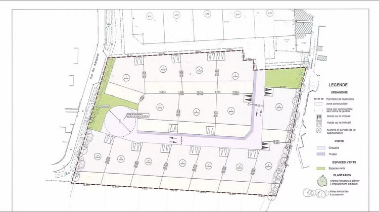
Descriptif du bien
En vente chez DELAMARCHE IMMOBILIER : Coudeville sur mer, en lotissement, Un terrain constructible lot numéro 15 d'une superficie de 507 m2, viabilisé. PRIX : 76000 euros Honoraires à la charge du vendeur. "Les informations sur les risques auxquels ce bien est exposé sont disponibles sur le site Géorisques : www.georisques.gouv.fr" Pour visiter : Agence DELAMARCHE IMMO.COM Aurélien Etard au 06.29.76.85.09

