Vente Terrain 49140, CORZE france 78 300 €
Descriptif du bien
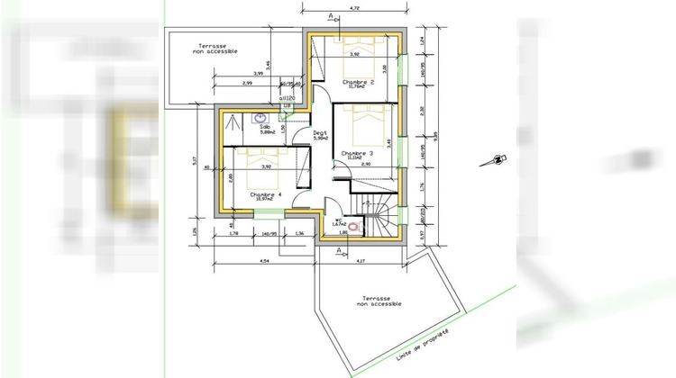
Dernière parcelle constructible disponible - Lieu-dit L'Épinière - 704 m² Découvrez cette opportunité sur la commune de Corzé : la dernière parcelle constructible du lieu-dit L'Épinière, idéalement située dans un environnement calme et recherché. Ce terrain de 704 m² offre un beau potentiel pour accueillir votre future maison. Un permis de construire déjà accepté vous permet de lancer votre projet rapidement et en toute sérénité. Son emplacement privilégié garantit un cadre de vie agréable, au coeur d'un secteur paisible et verdoyant. Vous profiterez d'un accès facile vers Angers, idéal pour les trajets quotidiens. Les commodités proches ? commerces, écoles et services ? facilitent la vie de tous les jours. Réf: 37051 Honoraires à charge acquéreurs* Les informations sur les risques auxquels ce bien est exposé sont disponibles sur le site Géorisques : www.georisques.gouv.fr" (11.86 % honoraires TTC à la charge de l'acquéreur.)
- Type de bien : Terrain
- Surface : 704 m²
- Localisation : France - pays-de-la-loire - Maine et Loire
- Ville : CORZE
- Code postal : 49140
- Annonce créée le 24/03/2026



