Vente Terrain 69360, Communay france 189 000 €
Descriptif du bien
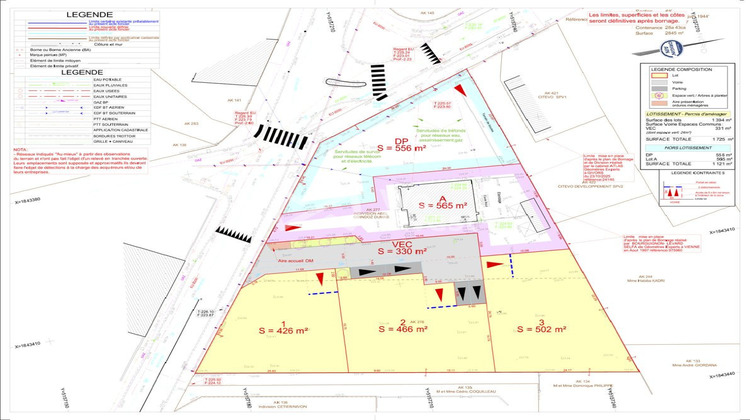
COMMUNAY Terrains à bâtir au sein d'un nouveau projet résidentiel
We Invest Ozéplus vous invite à découvrir un nouveau programme de terrains à bâtir situé à Communay, au sud de la commune, rue du 9 Juin 1944. Ce projet résidentiel à taille humaine s'implante dans un environnement pavillonnaire calme et recherché.
Le programme prévoit l'aménagement de plusieurs parcelles destinées à la construction de maisons individuelles, dans un cadre calme et harmonieux.
Le lot de 466 m², objet de cette annonce, offre :
une configuration plane, facilitant les projets de construction
une liberté totale dans le choix du constructeur
une vente prévue avec viabilisation
des accès et une voirie neufs, créés dans le cadre de l'opération
une intégration dans une opération d'aménagement dont le permis est en cours d'obtention
Autres parcelles disponibles dans le projet
426 m² : 185 000 (honoraires d'agence inclus)
466 m² : 189 000 (honoraires d'agence inclus)
Un plan d'implantation général est mis à disposition pour une meilleure projection du projet.
Urbanisme & cadre réglementaire
Les terrains sont situés en zone constructible du PLU de Communay. Le projet respecte l'ensemble des prescriptions locales en matière d'implantation, de volumétrie et d'aspect architectural, afin de garantir une cohérence d'ensemble et une valorisation pérenne du quartier.
Projection budgétaire (indicative)
À titre informatif, un professionnel de la construction estime :
une maison d'environ 90 m² à partir de 140 000
une maison d'environ 110 m² à partir de 150 000
Ces estimations n'ont aucune valeur contractuelle et n'impliquent aucune obligation de constructeur.
Cette annonce a été rédigée sous la responsabilité éditoriale de Ivan Lacroix, agissant sous le statut d'agent immobilier, immatriculée au RCS de Lyon n° 932 381 114.
Les informations sur les risques auxquels ce bien est exposé sont disponibles sur le site Géorisques : georisques.gouv.fr.
Votre conseiller Ozéplus : Ivan Lacroix
Agent commercial (Entreprise individuelle)
RCP 105708080
- Type de bien : Terrain
- Surface : 466 m²
- Localisation : France - Auvergne-Rhône-Alpes - Rhône
- Ville : Communay
- Code postal : 69360
- Annonce créée le 13/02/2026


