Vente Terrain 84300, Cavaillon france 179 000 €
1 / 6
Descriptif du bien
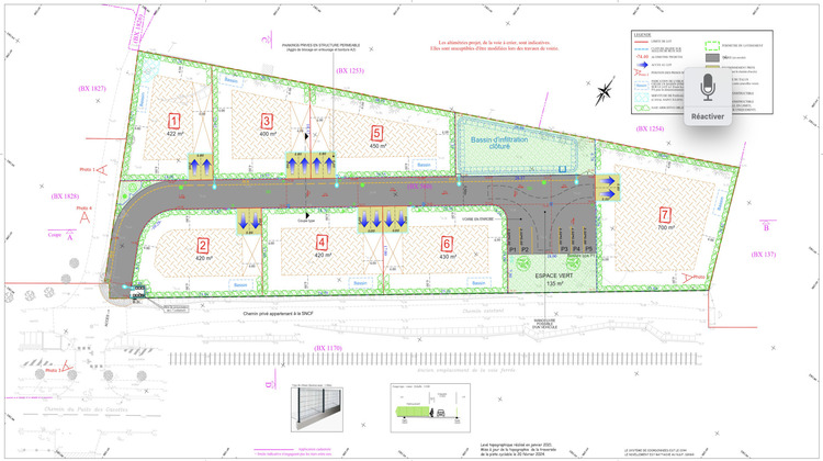
Cavaillon, secteur Taillades- Puits des Gavottes. A moins de 3 km du centre ville.
Nouveau lotissement Sainte Agathe, avec permis d'aménager accepté et purgé.
7 terrains à bâtir, entièrement viabilisés, surfaces allant de 400m2 à 700m2. Libre constructeur. Prix direct lotisseur.
Lot 7 de 700m2 avec une surface plancher ( SDP) de 180m2 maximum, 1 seule villa possible.
Eligible au pret à taux zéro ( PTZ) 2025.
Pour plus de précisions et connaitre les disponibilités , vous pouvez consulter l'ensemble des terrains sur notre site.
- Type de bien : Terrain
- Surface : 700 m²
- Localisation : France - provence-alpes-cote-d-azur - Vaucluse
- Ville : Cavaillon
- Code postal : 84300
- Disponible le 01/12/2025
- Annonce mise à jour le 05/03/2025





