Vente Terrain 11400, CASTELNAUDARY france 54 000 €
Descriptif du bien
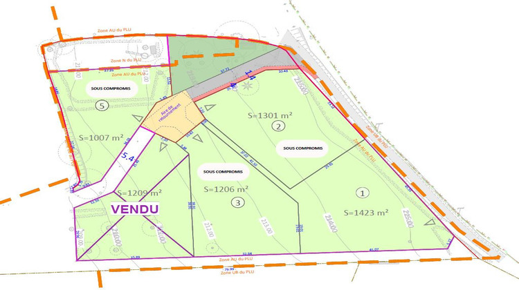
A 10 min de Bram et péage, entre Castelnaudary et Carcassonne, aux abords d'un village de caractère avec école, l'Agence IMOGROUP vous invite à découvrir ce magnifique terrain à bâtir de 1423 m². Situé dans un petit lotissement de 5 lots, il est entièrement viabilisé (eau, électricité et tout-à-l'égout), libre de tout constructeur. La surface de plancher est de 300 m². Il est plat et bénéficie d'une vue imprenable sur les Pyrénées (Lot N° 1 sur le plan). Vous recherchez la campagne, à 10 min de l'autoroute, avec des vues dégagées, pour construire la maison de vos rêves, c'est ici ! Venez apprécier la quiétude et le charme de cet emplacement. (8.00 % honoraires TTC à la charge de l'acquéreur.)





