Vente Terrain 11120, Bize-Minervois france 85 400 €
Descriptif du bien
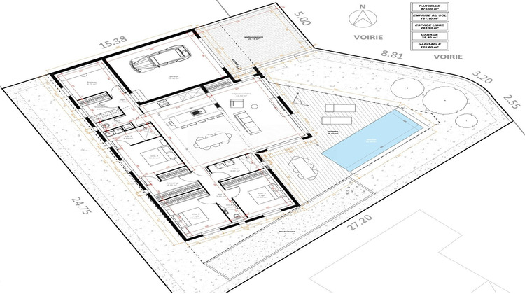
Terrain avec vue sur les collines de Bize-Minervois, au calme, situé au fond d'une impasse. Ce terrain viabilisé de 475 m2 est vendu avec un permis de construire purgé de tout recours, comprenant une maison de plain-pied de 125 m2 avec 3 chambres, un bureau, un garage, un terrain de pétanque et une piscine. Etude de sol G1 réalisée.
Possibilité de modifier le permis de construire suivant les règles d'urbanisme: emprise non règlementée et libre de tout constructeur.
L'emplacement est proche de l'école et des commerces.
Contactez moi au plus vite pour plus d'informations zéro six quatre vingt huit vingt six trente deux cinquante cinq.
Prix 85 400 Honoraires d'agence inclus à la charge du vendeur.
Barème consultable sur: http://www.immoangels.com/mentions-legales.html
Ce bien vous est présenté par Karine SLOUS EI, agent commercial en immobilier. RSAC de Montpellier 878244458.
Les informations sur les risques auxquels ce bien est exposé sont disponibles sur le site Georisque : georisques. gouv. fr
Honoraires à la charge du vendeur. Les informations sur les risques auxquels ce bien est exposé sont disponibles sur le site Géorisques : georisques.gouv.fr.
Votre conseiller IMMO ANGELS : Karine Slous
Agent commercial (Entreprise individuelle)
RSAC 878244458




