Vente Terrain 33830, Belin-Béliet france 450 000 €
1 / 5
Descriptif du bien
BELIN-BELIET Centre - Libre de constructeur.
Une parcelle de terrain à bâtir d'une superficie d'environ 2 300 m2.
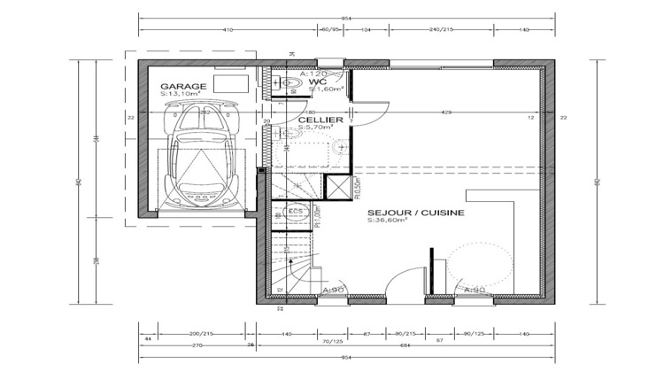
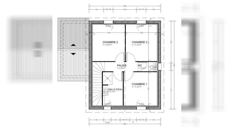
Un Permis de construire 7 maisons à étage d'environ 85 m2 et mitoyennes par un garage d'environ 13 m2 a été accepté par la Mairie.
Ce terrain est vendu Non Viabilisé. Les réseaux passent en bordure de voie.
Pour tout renseignement complémentaire, n'hésitez pas à nous contacter.
- Type de bien : Terrain
- Surface : 2300 m²
- Localisation : France - Nouvelle-Aquitaine - Gironde
- Ville : Belin-Béliet
- Code postal : 33830
- Annonce créée le 20/11/2024




