Vente Terrain 64200, BASSUSSARRY france 160 000 €
Descriptif du bien
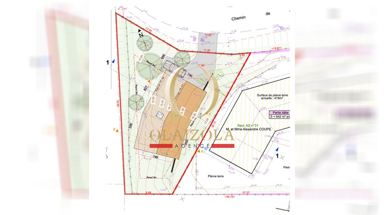
Dans un environnement résidentiel paisible et verdoyant de Bassussarry, à deux pas d'un golf et proche d'un espace boisé, ce terrain constructible de 489 m² offre un cadre idéal pour un projet de vie au calme, tout en restant proche des commodités. L'un de ses principaux atouts réside dans le fait qu'un permis de construire a déjà été accordé par la mairie, pour une maison individuelle d'environ 120 m² de surface de plancher. Cette autorisation, actuellement en cours de purge des recours, vous permet de démarrer votre projet rapidement et en toute sérénité, sans incertitude sur la faisabilité. Orienté sud-nord, le terrain permet d'organiser l'habitation avec des pièces de vie largement exposées au sud et un stationnement prévu côté nord. Bien que le terrain présente une pente marquée, il offre un fort potentiel d'aménagement, avec des solutions techniques éprouvées pour s'adapter au relief. Le cadre bâti environnant se compose essentiellement de villas individuelles, assurant tranquillité et harmonie architecturale. Facilement viabilisable, le terrain est situé en zone U du PLU et bénéficie d'un raccordement possible à l'assainissement collectif. L'accès reste à aménager, laissant libre cours à votre conception. Ce bien rare sur le secteur s'adresse aux acquéreurs désireux de réaliser une construction dans un cadre serein, avec un projet déjà validé par l'urbanisme local, gage de simplicité et de sécurité. Notre agence vous accueille téléphoniquement du lundi au samedi, de 8h à 19h, afin de répondre à toutes vos questions et de vous accompagner dans vos projets immobiliers. N'hésitez pas à nous contacter pour obtenir des informations personnalisées et un suivi attentif de vos démarches. Référence : OLAVMO1323 VENTE IMMOBILIER BASSUSSARRY HONORAIRES CHARGE VENDEUR Les informations sur les risques auxquels ce bien est exposé sont disponibles sur le site Géorisques : www.georisques.gouv.fr
- Type de bien : Terrain
- Localisation : France - Nouvelle-Aquitaine - Pyrénées-Atlantique
- Ville : BASSUSSARRY
- Code postal : 64200
- Annonce mise à jour le 21/04/2026


