Vente Terrain 33980, Audenge france 161 000 €
Descriptif du bien
Iad France - Caroline Top vous propose : Opportunité Rare - Terrain à Bâtir à Audenge
Vous rêvez de construire votre maison, venez découvrir ce magnifique terrain en seconde ligne d'une surface de 339 m².
Emprise au sol de 50%, terrain non viabilisé, raccordement tout à l'égout (servitude de 4m). Possibilité R + 1
Que vous souhaitiez réaliser une maison contemporaine, traditionnelle ou écologique, ce terrain saura s'adapter à toutes vos envies. Laissez libre cours à votre imagination pour concevoir un espace de vie qui vous ressemble.
En plus si vous souhaitez un projet clés en mains je vous propose également et ce en partenariat avec MCA - Romain Texier de construire votre maison sur un projet que nous avons imaginé et pensé pour vous.
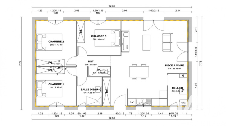
Une charmante maison traditionnelle de 80 m² avec ses 3 chambres et sa pièce de vie de 36 m² lumineuse. Vous trouverez le plan sur l'annonce. Si vous souhaitez plus d'informations contactez-moi.
Ne manquez pas cette opportunité.
Honoraires d'agence à la charge du vendeur.
Bien non soumis au DPE. Les informations sur les risques auxquels ce bien est exposé, y compris l'obligation légale de débroussaillement, sont disponibles sur le site Géorisques : http://www.georisques.gouv.fr.
La présente annonce immobilière a été rédigée sous la responsabilité éditoriale de Mme Caroline Top mandataire indépendant en immobilier (sans détention de fonds), agent commercial de la SAS I@D France immatriculé au RSAC de bordeaux sous le numéro 832422752, titulaire de la carte de démarchage immobilier pour le compte de la société I@D France SAS.Informations LOI ALUR : Honoraires charge vendeur. (gedeon_6727_32436053)
- Type de bien : Terrain
- Surface : 339 m²
- Localisation : France - Nouvelle-Aquitaine - Gironde
- Ville : Audenge
- Code postal : 33980
- Annonce créée le 16/04/2026




