Vente Maison 57915, Woustviller france 210 000 €
Descriptif du bien
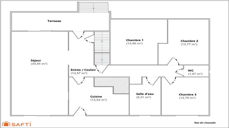
Située dans le charmant village de Woustviller, à quelques minutes de Sarreguemines et des principaux axes autoroutiers, cette maison individuelle construite en 1982 bénéficie d'un environnement calme tout en restant proche des commodités et des écoles. D'une surface habitable d'environ 170 m², elle est implantée sur un terrain de 1 050 m², offrant un cadre de vie agréable et de belles possibilités d'aménagement. Au rez-de-chaussée, vous découvrirez un salon-séjour lumineux, agrémenté d'un poêle à pellets, avec un accès direct à la terrasse et au jardin. La cuisine dispose également d'une sortie vers l'extérieur. Ce niveau comprend en outre trois chambres, une salle de bain et un WC séparé. À l'étage, des combles d'environ 60 m² sont déjà divisés en trois pièces. Cet espace reste à aménager selon vos envies : chambres supplémentaires, salle de jeux, bureau ou espace détente. La maison dispose également d'un sous-sol complet entièrement carrelé, comprenant une salle d'eau avec WC, une chaufferie, une buanderie, un garage double ainsi que des espaces de stockage. Sur le plan technique, le bien est équipé d'une pompe à chaleur, d'un poêle à pellets et d'une chaudière gaz. L'isolation a été réalisée par l'intérieur, avec des combles isolés. Les menuiseries sont en double vitrage PVC et la toiture est en bon état. Des travaux de rafraîchissement ainsi qu'une mise aux normes de l'électricité sont à prévoir, offrant l'opportunité de personnaliser le bien selon vos goûts. Une maison aux volumes généreux, idéale pour une famille ou un projet d'aménagement sur mesure. Les informations sur les risques auxquels ce bien est exposé sont disponibles sur le site Géorisques : www.georisques.gouv.frPrix de vente : 210 000 ¤Honoraires charge vendeurContactez votre conseiller SAFTI : Jonathan QUINTEN, Tél. : 06 23 30 80 13, E-mail : jonathan.quinten@safti.fr - EI - Agent commercial immatriculé au RSAC de SARREGUEMINES sous le numéro 852 436 781.Informations LOI ALUR : Honoraires charge vendeur. (gedeon_26118_32926483)





