Vente Maison 67202, Wolfisheim france 395 000 €
Descriptif du bien
Terrain d'Exception à Vendre -
WOLFISHEIM?
Superficie : 443 m²
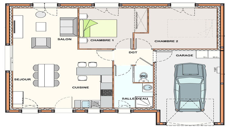
Prix : Pour une maison de 100m² Nous consulter
Projet amovible d'après vos attentes entre 100 et 140m² habitable
Description : Venez découvrir ce terrain rare et privilégié situé dans le vieux quartier de Wolfisheim.
Avec ses 443 m², ce terrain plat et constructible offre un cadre de vie idyllique, où nature et tranquillité se rencontrent. , vous offrant un accès direct à un espace naturel apaisant, parfait pour des moments de détente ou des activités en plein air. Ce terrain est idéal pour :La construction de votre maison individuelle dans un environnement calme et serein
Un projet immobilier d'exception alliant confort et nature
Un investissement dans un secteur en pleine demande, à proximité de Strasbourg
Les atouts clés :
?? Terrain constructible de 443 m², entièrement à viabilisé
?? Secteur prisé de Wolfisheim, à deux pas des transports, commerces et écoles
?? Quartier calme, parfait pour une vie paisible tout en étant proche de l'animation urbaine
?? Idéal pour un projet de maison familiale ou une résidence secondaire
Imaginez vous dans un cadre bucolique, tout en restant à quelques minutes des commodités de la ville. Ce terrain unique n'attend plus que votre projet !
Vente en vefa
DPE en cours. Les informations sur les risques auxquels ce bien est exposé sont disponibles sur le site Géorisques : georisques.gouv.fr.
Carte pro. 67012016000008199
- Type de bien : Maison
- Surface : 100 m²
- Localisation : France - Grand Est - Rhin (Bas)
- Ville : Wolfisheim
- Code postal : 67202
- Annonce créée le 14/02/2025

