Vente Maison 57330, Volmerange-les-Mines france 610 000 €
Descriptif du bien
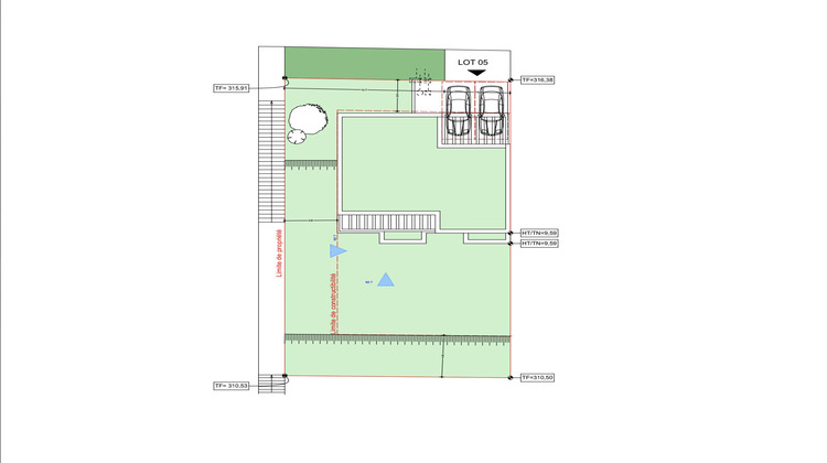
Maison contemporaine de 132 m2 habitables implantée sur un terrain de 489 m2 au sein du lotissement Arboretum. Le rez-de-chaussée s'ouvre sur une entrée avec placard, menant à la pièce principale de 36 m2 comprenant le salon, la salle à manger et la cuisine, prolongée par un cellier, un garage double de 25 m2, et ouverte sur une terrasse de 24 m2.
À l'étage inférieur, un dégagement distribue quatre chambres, dont deux suites parentales avec dressing et salle d'eau privative. Ce niveau est également doté d'une salle de bain, d'un WC et d'une buanderie. Chaque chambre dispose d'une grande baie vitrée ouvrant sur une terrasse privative, ainsi que d'un espace placard.
Pour plus d'informations, contactez-nous au 03 82 54 73 57 ou par e-mail à contact@open57.fr.



