Vente Maison 81500, Villeneuve-Lès-Lavaur france 334 000 €
Descriptif du bien
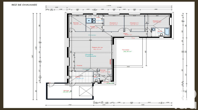
Iad France - Severine Badoc vous propose : À Villeneuve-lès-Lavaur, Maison neuve à personnaliser - 148 m² sur terrain de 690 m² - Accompagnement artisans possibleÀ seulement 30 min de Toulouse et 15 min de Verfeil, découvrez cette maison neuve de 2024 alliant tranquillité, confort et modernité. Située dans un environnement calme, cette maison offre un accès rapide à Toulouse, Blagnac ou Lavaur. Idéal pour les familles recherchant espace et sérénité sans s'éloigner des commodités. Maison neuve à finaliser selon vos goûtsD'une surface de 148 m², elle propose : - Une vaste pièce de vie de 60 m² baignée de lumière, prête à accueillir cuisine avec îlot, séjour et salon.- Une arrière-cuisine et un bureau de 10 m² pouvant devenir une 4e chambre.- Une suite parentale avec dressing sur-mesure et salle d'eau privative.- Deux chambres spacieuses et une salle de bain moderne à équiper selon vos envies.- Une terrasse de 29,7 m² exposée sud-est et un garage fermé avec accès intérieur. Travaux restants- Pose des sols et de la cuisine (mobilier déjà sur place).- Installation de l'assainissement individuel et raccordement électrique.- Aménagement du terrain après travaux. Budget estimatif des finitions : environ 24 000 ¤ (raccordements, assainissement, sols, pose cuisine, aménagements extérieurs). Devis détaillés disponibles pour assainissement et raccordement électrique. Prestations et confort moderne- Construction 2024 - Gros OEuvre et second OEuvre terminés- Domotique dernier cri pour un confort au quotidien- Cuisine haut de gamme fournie- Volumes généreux et plan fonctionnel pensé pour la vie de familleAtouts majeurs- Maison neuve, personnalisable selon vos envies- Luminosité optimale (exposition sud et est)- Emplacement calme, à proximité de ToulouseImaginez votre intérieur, personnalisez les finitions et emménagez dans une maison moderne et chaleureuse à Villeneuve-lès-Lavaur. Contactez-nous dès aujourd'hui pour organiser une visite et découvrir tout son potentiel. Honoraires d'agence à la charge du vendeur. Information d'affichage énergétique sur ce bien : classe ENERGIE A indice 28 et classe CLIMAT A indice 1. Les informations sur les risques auxquels ce bien est exposé, y compris l'obligation légale de débroussaillement, sont disponibles sur le site Géorisques : http://www.georisques.gouv.fr.La présente annonce immobilière a été rédigée sous la responsabilité éditoriale de Mme Severine Badoc mandataire indépendant en immobilier (sans détention de fonds), agent commercial de la SAS I@D France immatriculé au RSAC de TOULOUSE sous le numéro 984106435, titulaire de la carte de démarchage immobilier pour le compte de la société I@D France SAS.Informations LOI ALUR : Honoraires charge vendeur. (gedeon_6727_31750734)





