Vente Maison 54290, Velle-sur-Moselle france 75 000 €
Descriptif du bien
À vendre sur la commune de Vennes-sur-Moselle Maison à fort potentiel d'investissement
Idéal investisseur !
Située dans un secteur calme, cette maison à rénover offre un fort potentiel de valorisation et de rentabilité locative.
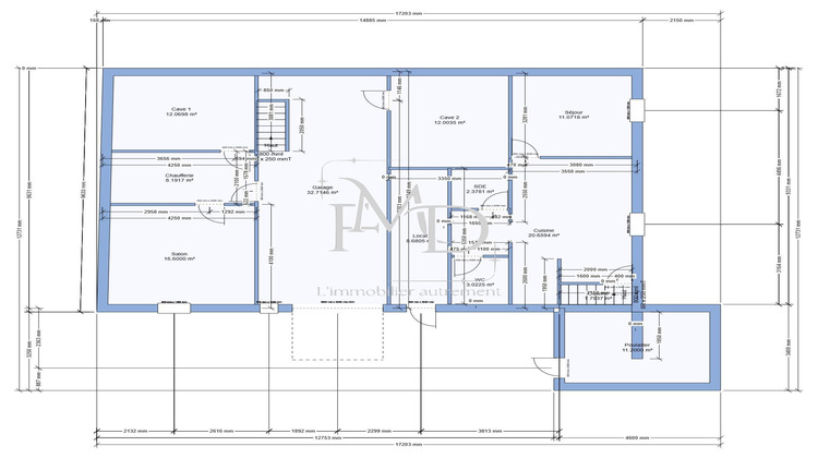
? Surface actuelle : environ 120 m² habitables
? Potentiel après rénovation : jusqu'à 200 m²
? Possibilité d'aménagement : création de 3 à 4 appartements
La configuration du bien permet d'envisager un projet de division avec :
combles aménageables
volumes exploitables
nombreuses possibilités d'agencement
Un garage est actuellement présent et peut être repensé ou supprimé afin d'optimiser la surface habitable ou la rentabilité.
? Le stationnement est facilité dans la rue (à confirmer selon projet).
? Atout majeur : idéal pour un projet de déficit foncier, revente à la découpe ou investissement locatif (longue durée ou meublé).
Travaux à prévoir parfait pour les investisseurs ou marchands de biens à la recherche d'un projet à forte création de valeur.
? À découvrir sans tarder !
Honoraires inclus de 5.63% TTC à la charge de l'acquéreur. Prix hors honoraires 71 000 . Logement à consommation énergétique excessive : Classe énergie G, Classe climat G Montant moyen estimé des dépenses annuelles d'énergie pour un usage standard, établi à partir des prix de l'énergie de l'année 2021 : entre 2348.00 et 3178.00 . Les informations sur les risques auxquels ce bien est exposé sont disponibles sur le site Géorisques : georisques.gouv.fr.
- Type de bien : Maison
- DPE : G -> 450 kWh/².an
- GES : G -> 80 kg eq CO2/².an
- Surface : 125 m²
- Localisation : France - Grand Est - Meurthe et Moselle
- Ville : Velle-sur-Moselle
- Code postal : 54290
- Annonce créée le 17/04/2026




