Vente Maison 88330, Vaxoncourt france 60 000 €
Descriptif du bien
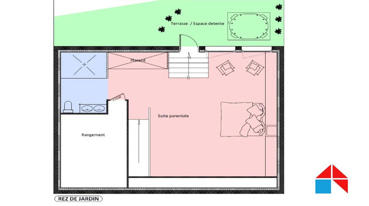
MAISON A TERMINER MAISON A FINIR DE RENOVER Opportunité exceptionnelle pour les amateurs de rénovation ! Ce bâtiment, offrant un grand potentiel, attend d'être terminé selon vos envies. Les travaux déjà réalisés : o Charpente et couverture o Fenêtres Etc.. plus d'infos sur demande par téléphone À l'intérieur, Imaginez : Votre espace de vie au rez-de-chaussée. À l'étage, deux belles chambres, une salle de bain et un dressing sur mesure. (déja réalisé en partie) La pièce maîtresse ? Une somptueuse suite parentale avec accès direct au terrain et un espace spa privé, offrant une vue imprenable sur la campagne environnante. Les photos proposées sont des projections 3D non contractuelles pour vous aider à visualiser le potentiel incroyable de ce projet. Prix de vente : 60 000 euros, honoraires inclus. Pour plus d'informations, contactez moi. Grâce à son expertise en architecture, il saura vous accompagner et vous conseiller dans ce projet unique. Ne manquez pas cette chance de créer la maison de vos rêves !
Informations LOI ALUR :
Honoraires charge vendeur. (gedeon_40343_29917557)




