Vente Maison 77910, Varreddes france 390 000 €
Descriptif du bien
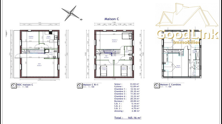
Maison (2026) Spacieux et Lumineux de 6 Pièces - 165,16m²
Découvrez cette maison exceptionnelle de 165,16 m², situé dans une commune en pleine croissance.
Ce bien rare allie élégance et fonctionnalité, offrant un cadre de vie idéal pour les familles ou les professionnels en quête d'espace et de confort.
Dès l'entrée, vous serez séduit par l'ambiance chaleureuse et accueillante qui règne dans cet appartement. Les pièces spacieuses et lumineuses sont conçues pour maximiser la lumière naturelle, créant une atmosphère agréable et conviviale. Le salon, vaste et ouvert, est parfait pour recevoir vos invités ou profiter de moments de détente en famille.
La cuisine équipée, fermé est un véritable atout pour partager des moments convivial.
Les 5 chambres dont une suite, offrent un espace de vie intime et confortable.
Cette maison est également doté de trois salle d'eau moderne, complétée par des finitions de qualité. Les matériaux utilisés et les équipements installés garantissent un confort optimal et une durabilité à toute épreuve. Imaginez-vous vivre dans ce havre de paix, où chaque détail a été pensé pour votre bien-être.
Les commodités à proximité, telles que les écoles, les commerces et les transports en commun, rendent la vie quotidienne encore plus agréable. Ne manquez pas cette opportunité unique de vous offrir un cadre de vie exceptionnel. Contactez nous dès maintenant pour organiser une visite et laissez-vous séduire par ce bien d'exception.
Non soumis au DPE. Les informations sur les risques auxquels ce bien est exposé sont disponibles sur le site Géorisques : georisques.gouv.fr.
Votre conseiller GoodLink Immobilier : Mathilde BLAQUE
Agent commercial (Entreprise individuelle)
RSAC 911 467 140
RCP Beazley AACI/31660/41991
- Type de bien : Maison
- Surface : 165 m²
- Localisation : France - ile-de-france - Seine et Marne
- Ville : Varreddes
- Code postal : 77910
- Annonce créée le 03/04/2026

