Vente Maison 34130, VALERGUES france 241 500 €
Descriptif du bien
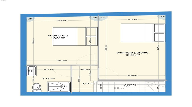
À vendre – Maison T3 à Valergues (Hérault) Sur la commune prisée de Valergues, venez découvrir cette maison mitoyenne entièrement rénovée. Idéalement située à proximité du centre du village, dans un environnement calme et résidentiel, cette maison offre un cadre de vie agréable à seulement quelques minutes des axes principaux reliant Montpellier, Nîmes et les plages méditerranéennes. Description du bien Maison mitoyenne R+1 Cour privative et place de stationnement Surface optimisée, type T3 Rez-de-chaussée Entrée sur séjour lumineux Cuisine ouverte semi-équipée WC séparé Étage 2 chambres Salle d'eau avec WC Maison climatisée, pour un confort optimal en toute saison. Atouts Prestations modernes Extérieur privatif et stationnement Environnement agréable, village dynamique Accès rapide Montpellier / Nîmes / plages Idéal résidence principale ou investissement locatif Une belle opportunité sur un secteur recherché — contactez-nous pour plus d'informations et pour découvrir le projet ! Les honoraires sont à la charge du vendeur. Les informations sur les risques auxquels ce bien est exposé sont disponibles sur le site Géorisques : www. georisques. gouv. fr. Réseau Immobilier CAPIFRANCE - Votre agent commercial (RSAC N°510 449 069 - Greffe de NIMES) Damien CHEVALLIER Entrepreneur Individuel 07 69 72 54 52 - Réf.946233




