Vente Maison 69780, TOUSSIEU france 499 000 €
Descriptif du bien
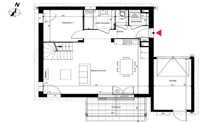
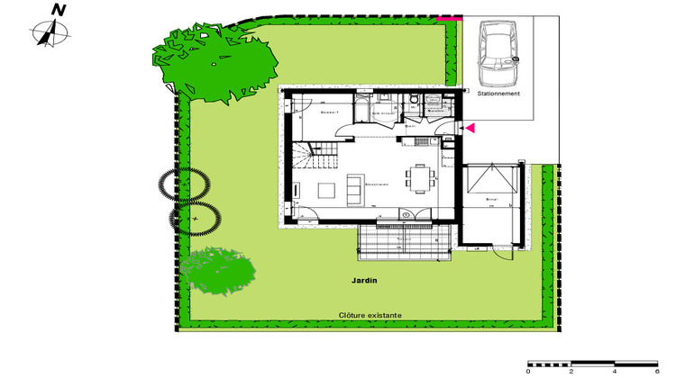
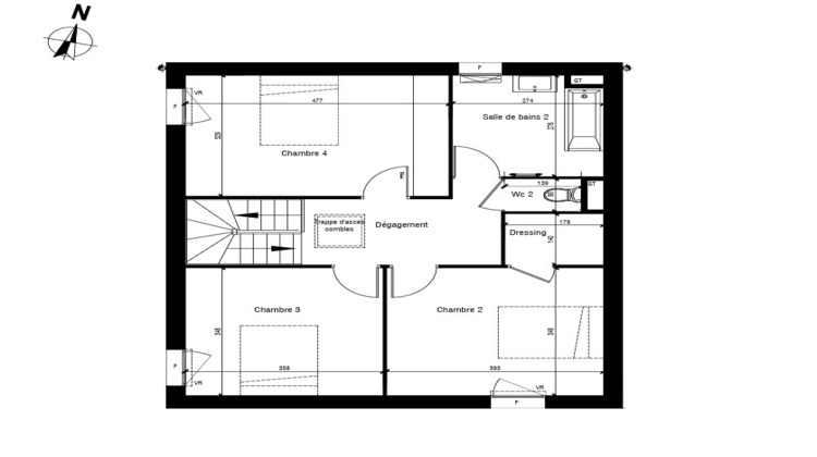
Offrez-vous la maison de vos rêves, idéalement située à proximité des commerces, avec le calme unique d'un village aux portes de Lyon. (69780) Toussieu, Je vous propose, dans un village plein de charme, animé de commerces et entouré de nature, une maison de 120,45 m² avec un jardin de 240 M², une terrasse de 10,75 m². Vous bénéficiez aussi de 2 places de parking. Lot 7008 La maison offre au rez-de-chaussée, une cuisine ouverte sur un séjour de 37,70 m², donnant une pièce aérée et conviviale et s'ouvrant sur la terrasse et le jardin, ce qui apporte un maximum de luminosité à votre intérieur. Vous trouverez également une chambre de 9,40 M², une salle de bain de 4,35 M², une buanderie et un WC séparé. Vous disposerez aussi d'un garage de 14,20 M². A l'étage, il y a trois belles chambres de 12,50 M² à 16.25 M² dont une avec un dressing, une belle salle de bain de 7,35 m² et un WC séparé. Tout ceci dans un style contemporain où les matériaux et les équipements ont été choisis pour vous offrir un confort moderne et un chez-soi agréable à vivre. Produit unique et très rare sur le secteur. Livraison : 3ème trimestre 2026 (frais de notaire réduits) DPE non requis Prix de vente : 499.000 euros Mandat réf: 439122 Informations, réservations auprès de votre conseiller commercialisateur Coll Thierry pour ineuf-com au 06 62 37 23 23. Pour visiter et vous accompagner dans votre projet, contactez Thierry Coll, agissant sous le statut conseiller immobilier indépendant auprès de la SAS Propriétés Privées au 06 62 37 23 23 ou par courriel à t.coll@proprietes-privees.com. RCS 487 624 777 - Le professionnel vous conseille, garantit et sécurise votre projet immobilier. Cette présente annonce a été rédigée sous la responsabilité éditoriale de Coll Thierry agissant sous le statut d'agent commercial immatriculé au RSAC BREST 878921915 auprès de la SAS PROPRIETES PRIVEES, Réseau national immobilier, au capital de 40000 euros, 44 ALLÉE DES CINQ CONTINENTS - ZAC LE CHÊNE FERRÉ, 44120 VERTOU, RCS Nantes n° 487 624 777 00040, Copropriété de 35 lots - dont 35 lots habitation.
- Type de bien : Maison
- Surface : 120 m²
- Localisation : France - Auvergne-Rhône-Alpes - Rhône
- Ville : TOUSSIEU
- Code postal : 69780
- Annonce créée le 04/04/2026



